Capital-Build
Capital-Build

ARSHAKUNYATS RESIDENCE - Building G

Premium Class Residential Complex
  • 987
    Apartments
  • 3Buildings
  • 7+
    Advantages
The perfect harmony of luxury and comfort

When it comes to the perfect apartment, Arshakunyats Residence exceeds all expectations, combining luxury with comfort. In the very heart of Yerevan, we are building a one-of-a-kind residential complex that brings a fresh breath and a modern rhythm to the city’s traditions. Rounded edges, sleek lines stretching into the sky, and airy bridges give the building a sense of lightness and contemporary elegance.

The fully glassed façades allow for abundant natural sunlight, making each apartment bright, warm, and full of energy. Modern floor plan solutions shape a convenient, functional, and thoughtfully designed environment that meets the needs of a new generation of residents. The complex will feature three luxurious 24-story buildings, a three-level underground parking, and three floors of commercial and public spaces.

WANT TO LEARN MORE ABOUT THIS PROJECT?
REQUEST PRESENTATION
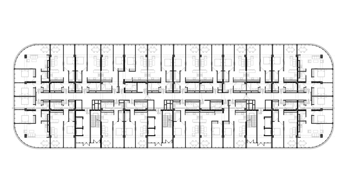
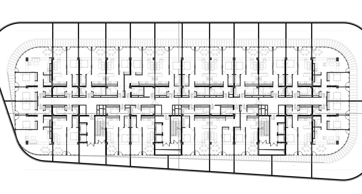
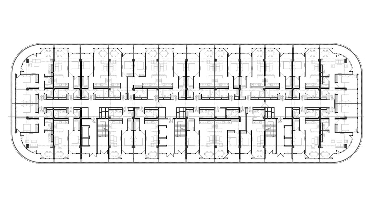
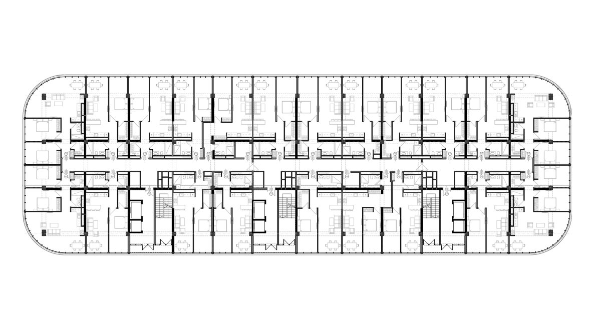
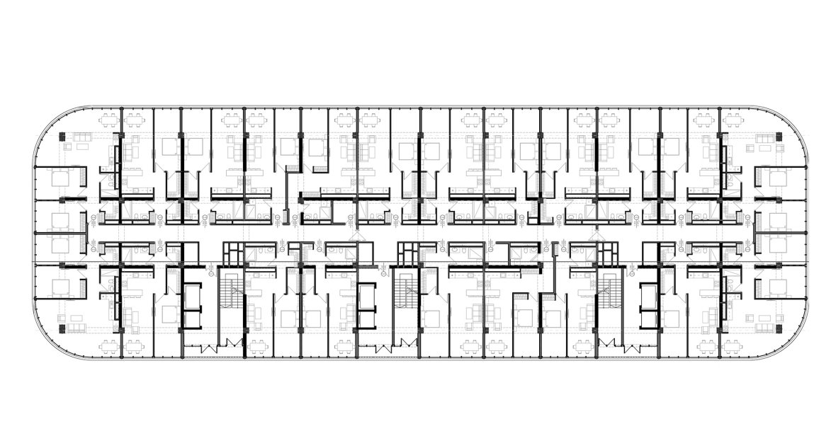
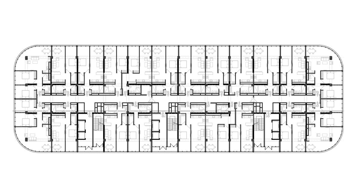
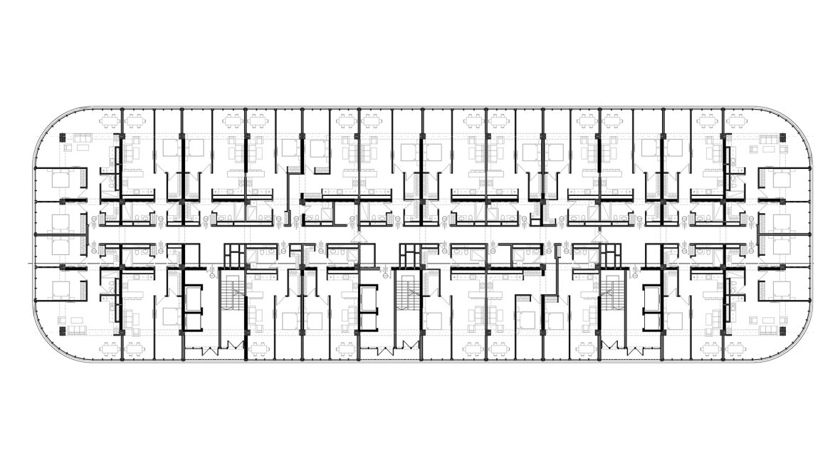
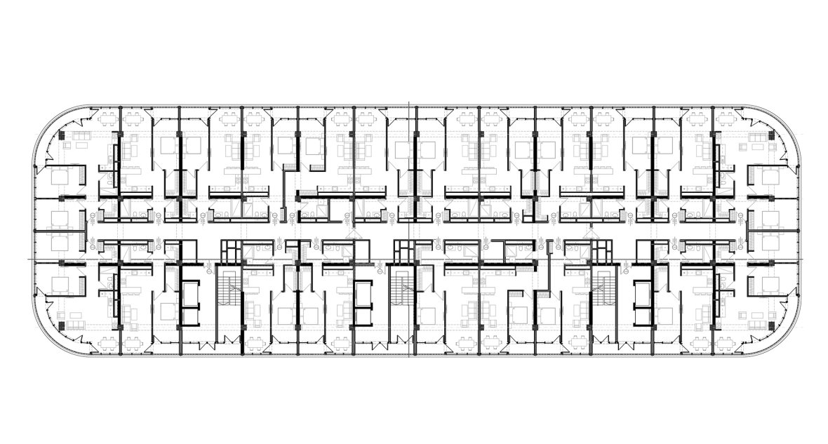
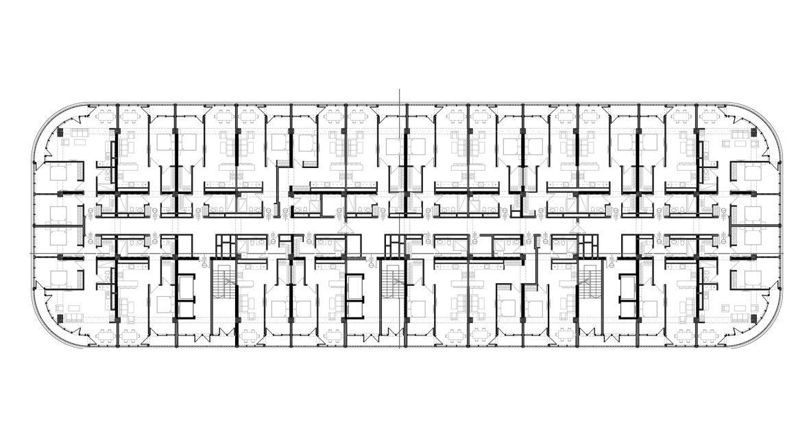
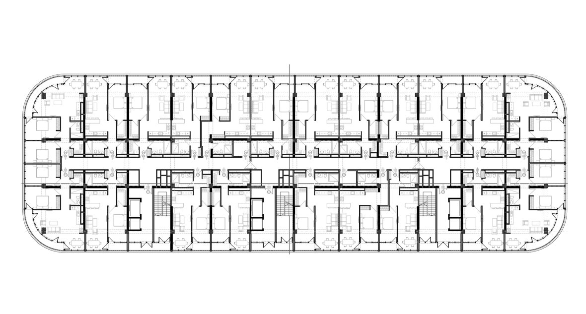
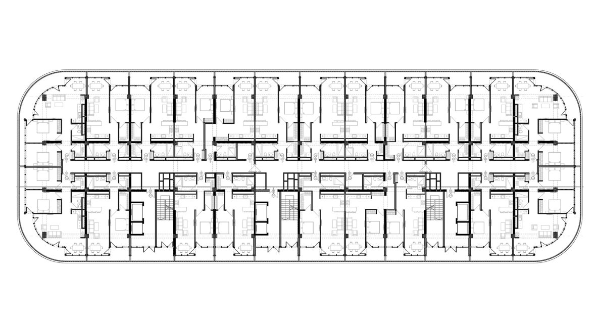
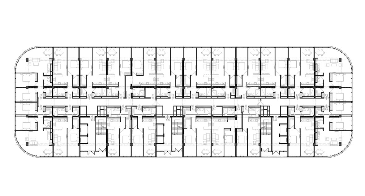
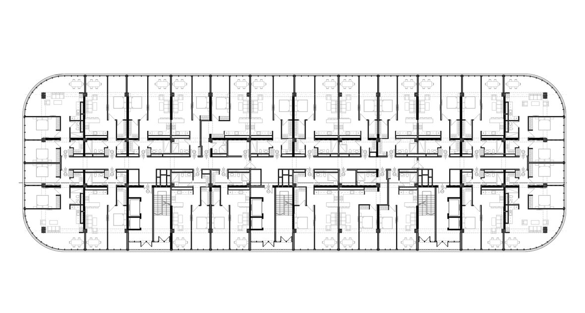
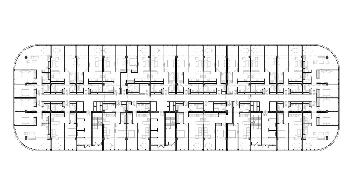
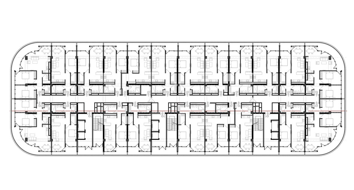
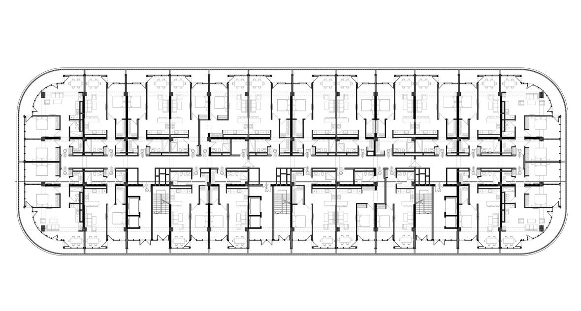
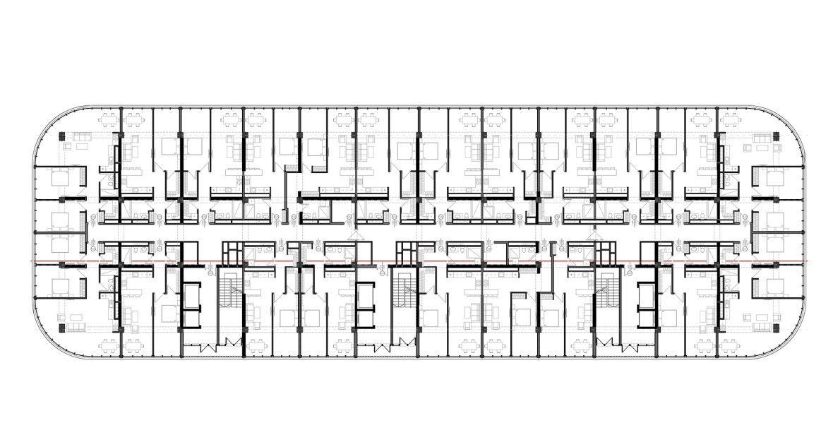
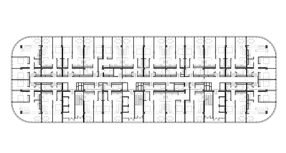
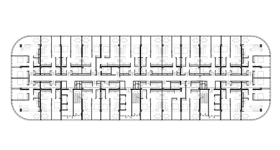
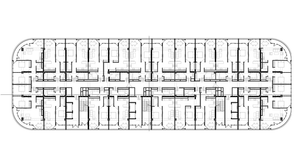
Choose apartment for each floor
Floor 24
Floor 23
Floor 22
Floor 21
Floor 20
Floor 19
Floor 18
Floor 17
Floor 16
Floor 15
Floor 14
Floor 13
Floor 12
Floor 11
Floor 10
Floor 9
Floor 8
Floor 7
Floor 6
Floor 5
Floor 4
Already bought
Free
Back
OUR ADVANTAGES
Close to the city center
A functional and thoughtfully designed environment
Elegant and tasteful architecture
Premium-grade construction
In the city center — close to nature
Seismic resistance
Capital-Build Capital-Build Capital-Build
ARSHAKUNYATS RESIDENCE
12 Sevan Street
View on Google Maps
Location

"Arshakunyats Residence" residential complex is being built in the Kentron district of Yerevan, at 12 Sevani Street, just 1 km away from Republic Square. Thanks to its excellent location, the area surrounding the complex offers all the necessary infrastructure for a comfortable daily life — schools, kindergartens, supermarkets, shopping centers, and more.