Capital-Build
Capital-Build

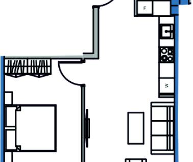
Komitas 59

Capital-BuildCorp A
Capital-BuildFloor 9
Capital-BuildA-9-16
Square area
56.83 m 2
Price per square meter
620000 ֏
Apartment cost
35234600 ֏
Similar apartments
CONTACT US
Contact Us
mandatory field
mandatory field invalid email format
mandatory field
mandatory field

Capital-Build Capital-Build Capital-Build
Komitas 59
Komitas 59
View on Google Maps