Capital-Build
Capital-Build

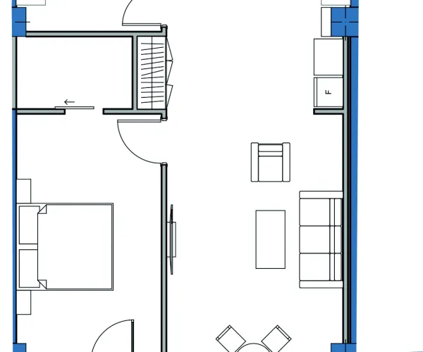
Choice of apartment

mandatory field
invalid number
mandatory field
All calculations are approximate and are not a public offer
Total payable 56,367,999 ֏
Total payments 100,625.00 ֏
Total interest 625.00 ֏
Build a schedule
Similar apartments
CONTACT US
Contact Us
mandatory field
mandatory field invalid email format
mandatory field
mandatory field

Capital-Build Capital-Build Capital-Build
Komitas 59
Komitas 59
View on Google Maps

sssssssssssssss