Capital-Build
Capital-Build

ARSHAKUNYATS RESIDENCE - Корпус A

Жилой комплекс премиум-класса
  • 987Квартиры
  • 3Корпусов
  • 7+
    Преимуществ
Идеальное сочетание роскоши и комфорта

Когда речь идет об идеальной квартире, «Аршакуняц Резиденс» превосходит все ожидания, сочетая в себе роскошь и комфорт. В самом сердце Еревана мы строим уникальный жилой комплекс, который придает городской традиции новое дыхание и современный ритм. Округлённые формы, плавные линии, устремляющиеся в небо, и воздушные мосты придают зданию лёгкость и утонченную современность.

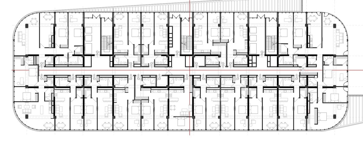
Полностью остеклённые фасады обеспечивают естественное солнечное освещение, делая квартиры светлыми, тёплыми и наполненными энергией. Современные планировочные решения создают удобную, функциональную и продуманную среду, соответствующую потребностям нового поколения. Комплекс будет состоять из трёх роскошных 24-этажных зданий, трёхуровневого подземного паркинга и трёх этажей общественных пространств.

ХОТИТЕ УЗНАТЬ БОЛЬШЕ ОБ ЭТОМ ПРОЕКТЕ?
ЗАПРОСИТЬ ПРЕЗЕНТАЦИЮ
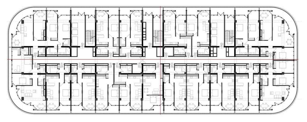
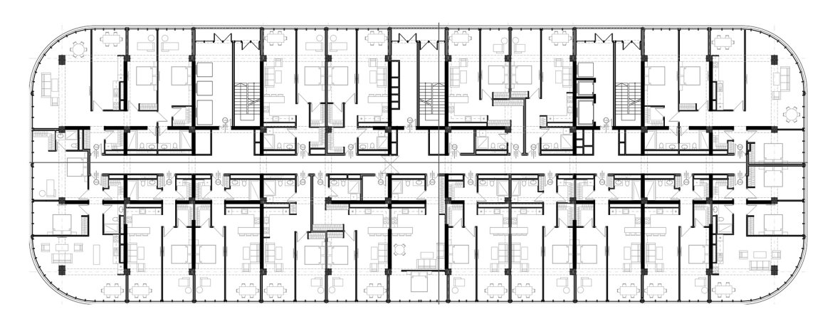
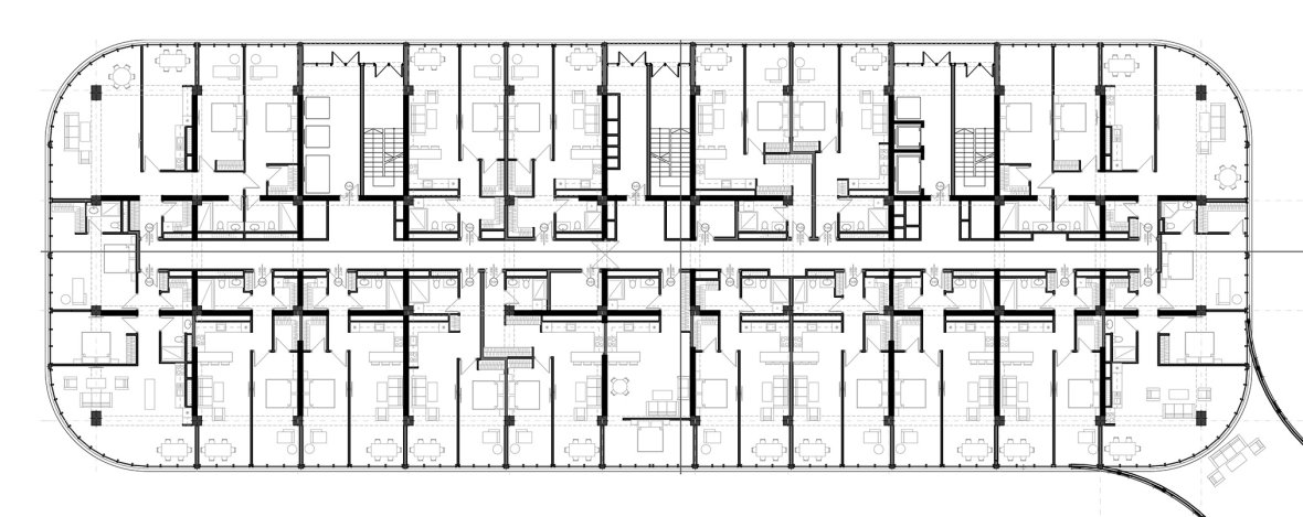
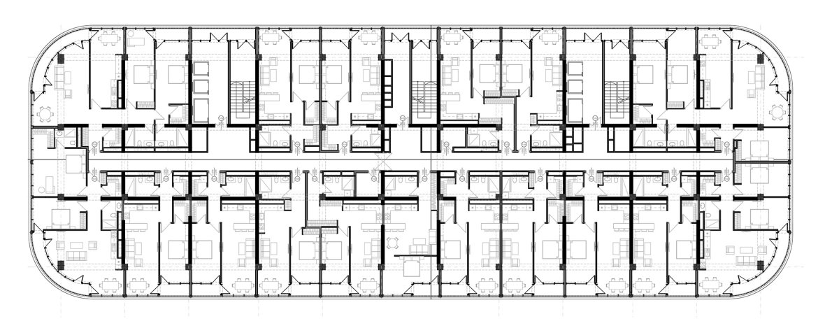
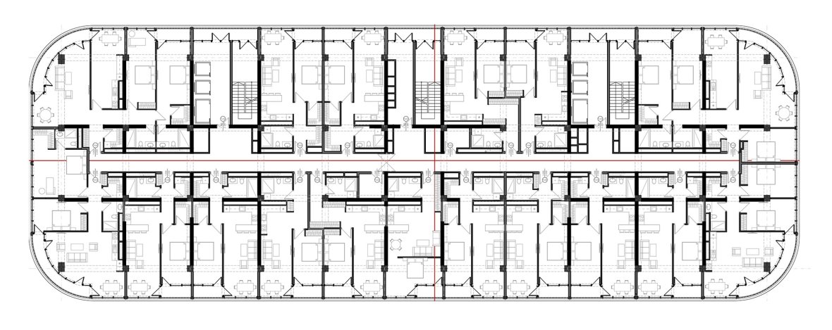
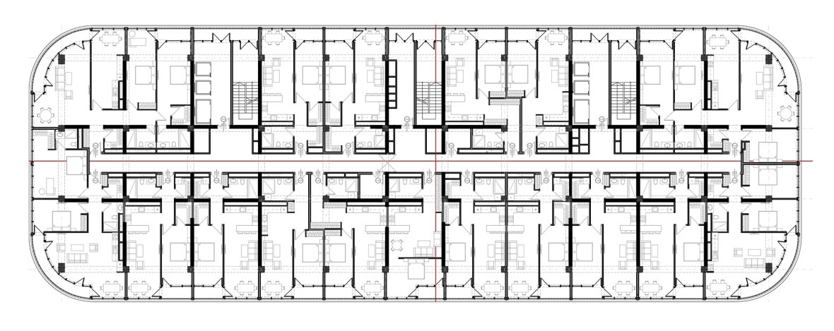
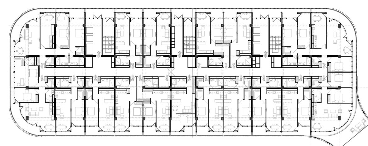
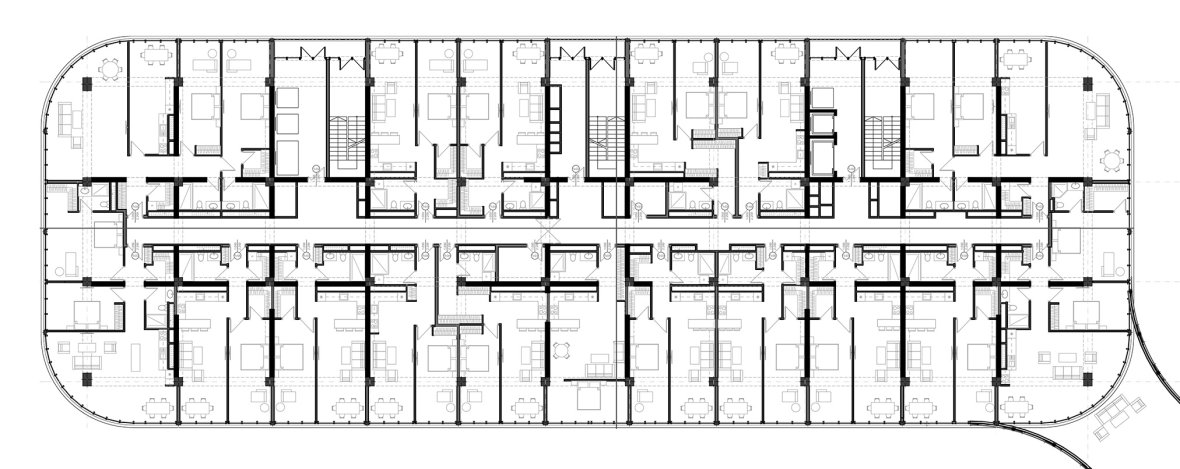
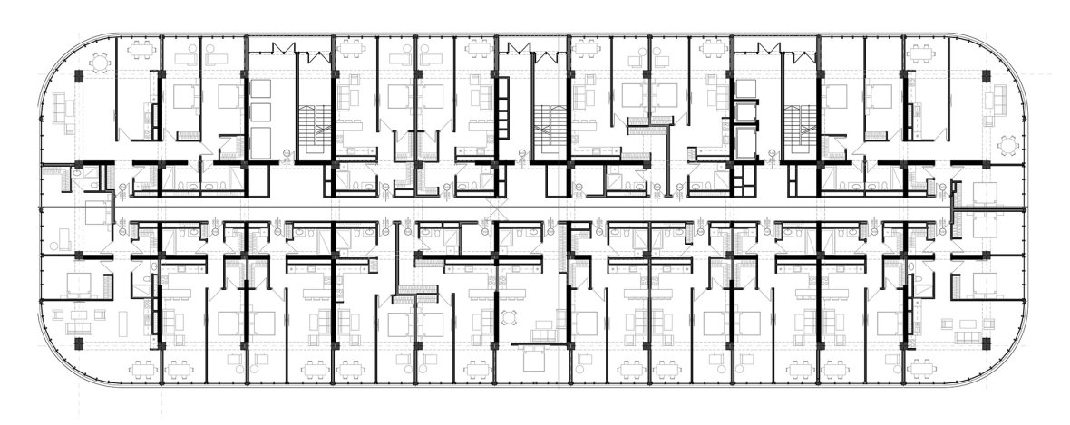
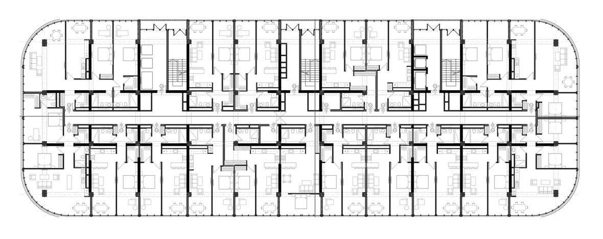
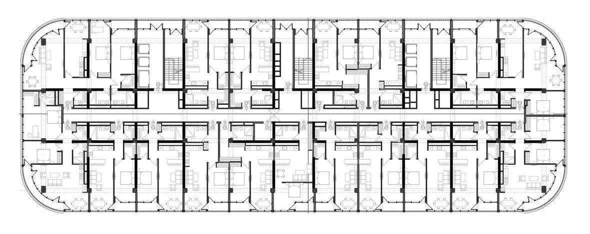
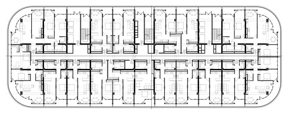
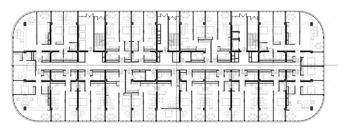
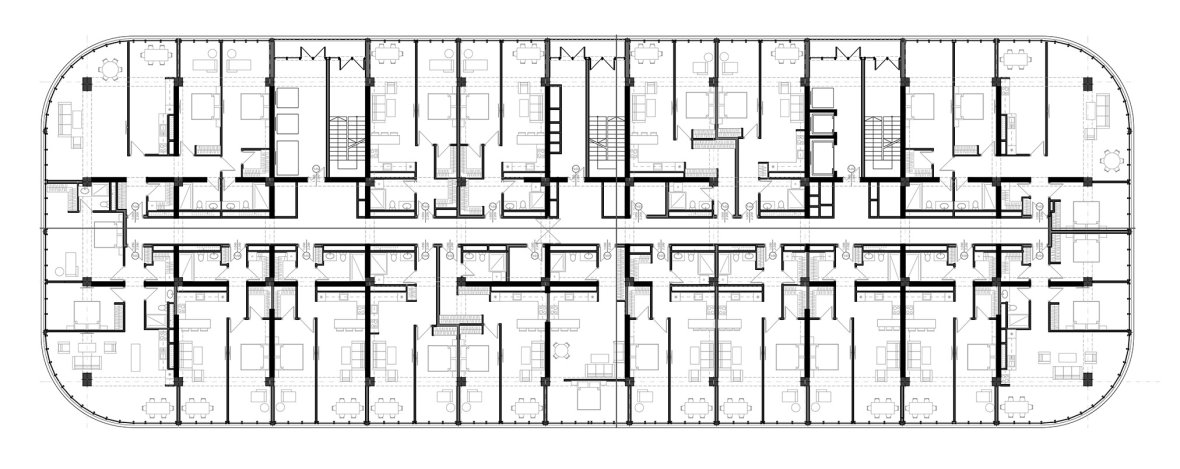
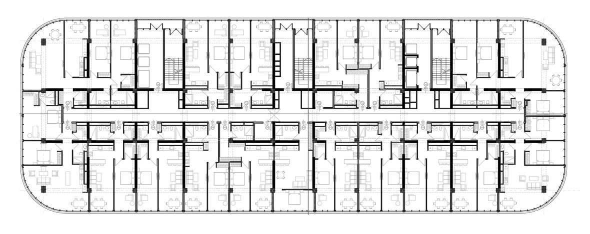
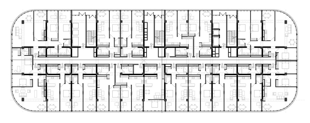
Выберите квартиру для каждого этажа
Этаж 24
Этаж 23
Этаж 22
Этаж 21
Этаж 20
Этаж 19
Этаж 18
Этаж 17
Этаж 16
Этаж 15
Этаж 14
Этаж 13
Этаж 12
Этаж 11
Этаж 10
Этаж 9
Этаж 8
Этаж 7
Этаж 6
Этаж 5
Уже куплено
Свободные
Назад
НАШИ ПРЕИМУЩЕСТВА
Рядом с центром города
Функциональная и продуманная среда
Элегантная архитектура
Качественное строительство
В центре города — рядом с природой
Сейсмостойкость
Capital-Build Capital-Build Capital-Build
ARSHAKUNYATS RESIDENCE
Севан 12
Посмотреть на Google картах
Местоположение

Жилой комплекс «Аршакуняц Резиденс» строится в административном районе Кентрон города Ереван, по адресу Севан 12, всего в 1 км от площади Республики. Благодаря отличному расположению, в окрестностях жилого комплекса находятся все необходимые инфраструктуры для комфортной повседневной жизни — школы, детские сады, супермаркеты, торговые центры и др.